Aluminum square tube is widely used in building curtain walls, mechanical frames, solar brackets, and vehicle structures, with high requirements for dimensional accuracy and appearance.
Chalco specializes in producing and stocking various extruded aluminum square tubes, with no mold fee, helping you save costs and shorten delivery time by 2–3 weeks. Custom sizes are available at wholesale prices, suitable for both small and large orders.
We have 100+ sets of aluminum square tube molds, covering sizes from 12.7 × 12.7 mm to 200 × 200 mm, with wall thicknesses from 0.8–6.35 mm. Mold types include sharp-corner square tubes and round-corner square tubes, meeting different structural and decorative needs.
Click to view our mold size details or click here to download the aluminum square tube mold file.
Why choose existing molds?
In aluminum square tube production, customers can either use existing molds or opt for custom mold development. A comparison shows that existing molds are advantageous in most cases:
- Initial investment: Existing mold → No mold fee, lower cost; Custom → Requires mold fee, increasing budget.
- Delivery speed: Existing mold → Ready-made mold, fastest 7–10 days delivery; Custom → Requires mold making and testing, longer lead time.
- Size range: Existing mold → Covers common sizes from 12 × 12 mm to 200 × 200 mm; Custom → Any non-standard cross-section, fully produced according to drawings.
- Quality and risk: Existing mold → Mature molds, stable and reliable, with EN 10204 3.1 material certificate and test reports; Custom → New molds need debugging, with uncertainty.
If your needs fall within the standard size range, choosing existing molds is faster, more economical, and more reliable. For special cross-sections or unique designs, custom molds can be considered.
Specifications of aluminum square tubes
Chalco's aluminum square tube products strictly comply with international and industry standards, ensuring that chemical composition, mechanical properties, dimensional tolerances, and processing requirements all meet customer expectations. Our products are widely used in aerospace, building structures, automobile manufacturing, and industrial equipment, providing customers with reliable quality assurance.
Aluminum square tubes specifications
| Aluminum square tubes specifications | ||
| ASTM B221 | AMS-QQ-A-200/9 | BS EN 755 |
| ASTM B241 | ASTM B429 | ASTM B483 |
Popular alloy types of aluminum square tubes
-
6061 aluminum square tube
Temper: T5, T6, T651
Features: Corrosion resistant, easy to process, and good weldability.
-
6063 aluminum square tube
Temper: T5, T6
Features: Corrosion resistant, smooth surface, and good decorative appearance.
-
2024 aluminum square tube
Temper: T3, T4, T351
Features: High strength, good machinability, and excellent fatigue performance.
-
7075 aluminum square tube
Temper: T6, T651
Features: Ultra-high strength, good wear resistance, and excellent mechanical properties.
-
6082 aluminum square tube
Temper: T6, T651
Features: Good corrosion resistance, excellent weldability, and high strength.
-
5052 aluminum square tube
Temper: O, H32, H34
Features: Corrosion resistant, good formability, and excellent weldability.
Aluminum square tube mold sizes
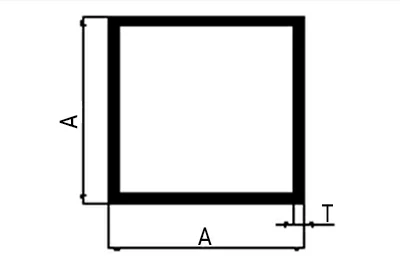
Aluminum square tube mold (Sharp Corner)
Sharp-corner aluminum square tube molds produce profiles with square shapes and sharp edges, suitable for frames and load-bearing structures that require high joining accuracy. They are commonly used in mechanical frames, curtain wall keels, and railings.
Contact us now
The table below shows some common sharp-corner aluminum square tube mold sizes:
| Model NO. | A(mm) | T(mm) | A(inch) | T(in) | Weight(kg/m) | Weight(lb/ft |
| H12.7x12.7x1 | 12.7mm | 1mm | 0.5" | 0.04" | 0.129kg/m | 0.09lb/ft |
| H15x15x1.5 | 15mm | 1.5mm | 0.59" | 0.06" | 0.22kg/m | 0.15lb/ft |
| H15.9x15.9x1.2 | 15.9mm | 1.2mm | 0.63" | 0.05" | 0.19kg/m | 0.13lb/ft |
| H15.9x15.9x1.3 | 15.9mm | 1.3mm | 0.63" | 0.05" | 0.205kg/m | 0.14lb/ft |
| H16x16x1 | 16mm | 1mm | 0.63" | 0.04" | 0.163kg/m | 0.11lb/ft |
| H16x16x1.25 | 16mm | 1.25mm | 0.63" | 0.05" | 0.199kg/m | 0.13lb/ft |
| H19.05x19.05x7.92 | 19.05 mm | 0.75" | 0.75" | 0.31" | 2.25 kg/m | 1.51 lb/ft |
| H19.05x19.05x0.8 | 19.05mm | 0.8mm | 0.75" | 0.03" | 0.158kg/m | 0.11lb/ft |
| H19.05x19.05x1.27 | 19.05mm | 1.27mm | 0.75" | 0.05" | 0.246kg/m | 0.17lb/ft |
| H19.05x19.05x1.59 | 19.05mm | 1.59mm | 0.75" | 0.06" | 0.299kg/m | 0.2lb/ft |
| H19.05x19.05x3 | 19.05mm | 3mm | 0.75" | 0.12" | 0.522kg/m | 0.35lb/ft |
| H19x19x1.5 | 19mm | 1.5mm | 0.75" | 0.06" | 0.286kg/m | 0.19lb/ft |
| H20x20x1.2 | 20mm | 1.2mm | 0.79" | 0.05" | 0.245kg/m | 0.16lb/ft |
| H21x21x2 | 21mm | 2mm | 0.83" | 0.08" | 0.412kg/m | 0.28lb/ft |
| H24x24x2.85 | 24 mm | 0.94" | 0.94" | 0.11" | 0.74 kg/m | 0.50 lb/ft |
| H25x25x11.5 | 25 mm | 0.98" | 0.98" | 0.45" | 2.97 kg/m | 2.00 lb/ft |
| H25x25x0.8 | 25mm | 0.8mm | 0.98" | 0.03" | 0.21kg/m | 0.14lb/ft |
| H25x25x1.2 | 25mm | 1.2mm | 0.98" | 0.05" | 0.31kg/m | 0.21lb/ft |
| H25x25x1.5 | 25mm | 1.5mm | 0.98" | 0.06" | 0.381kg/m | 0.26lb/ft |
| H25x25x1.6 | 25mm | 1.6mm | 0.98" | 0.06" | 0.406kg/m | 0.27lb/ft |
| H25x25x2 | 25mm | 2mm | 0.98" | 0.08" | 0.499kg/m | 0.34lb/ft |
| H25x25x3 | 25mm | 3mm | 0.98" | 0.12" | 0.716kg/m | 0.48lb/ft |
| H25.4x25.4x0.8 | 25.4mm | 0.8mm | 1" | 0.03" | 0.213kg/m | 0.14lb/ft |
| H25.4x25.4x1.27 | 25.4mm | 1.27mm | 1" | 0.05" | 0.333kg/m | 0.22lb/ft |
| H25.4x25.4x1.57 | 25.4mm | 1.57mm | 1" | 0.06" | 0.406kg/m | 0.27lb/ft |
| H25.4x25.4x1.59 | 25.4mm | 1.59mm | 1" | 0.06" | 0.408kg/m | 0.27lb/ft |
| H25.4x25.4x2 | 25.4mm | 2mm | 1" | 0.08" | 0.507kg/m | 0.34lb/ft |
| H25.4x25.4x2.41 | 25.4mm | 2.41mm | 1" | 0.09" | 0.601kg/m | 0.4lb/ft |
| H25.4x25.4x3 | 25.4mm | 3mm | 1" | 0.12" | 0.726kg/m | 0.49lb/ft |
| H25.4x25.4x3.18 | 25.4mm | 3.18mm | 1" | 0.13" | 0.766kg/m | 0.51lb/ft |
| H25.4x25.4x11.2 | 25.4 mm | 1.00" | 1.00" | 0.44" | 3.02 kg/m | 2.03 lb/ft |
| H27x27x3 | 27mm | 3mm | 1.06" | 0.12" | 0.781kg/m | 0.52lb/ft |
| H28.7x28.7x3 | 28.7mm | 3mm | 1.13" | 0.12" | 0.836kg/m | 0.56lb/ft |
| H30x30x14 | 30 mm | 1.18" | 1.18" | 0.55" | 4.18 kg/m | 2.81 lb/ft |
| H30x30x1.2 | 30mm | 1.2mm | 1.18" | 0.05" | 0.373kg/m | 0.25lb/ft |
| H30x30x1.5 | 30mm | 1.5mm | 1.18" | 0.06" | 0.463kg/m | 0.31lb/ft |
| H30x30x2 | 30mm | 2mm | 1.18" | 0.08" | 0.607kg/m | 0.41lb/ft |
| H30x30x3 | 30mm | 3mm | 1.18" | 0.12" | 0.878kg/m | 0.59lb/ft |
| H31.75x31.75x3.18 | 31.75mm | 3.18mm | 1.25" | 0.13" | 0.985kg/m | 0.66lb/ft |
| H31.7x31.7x0.8 | 31.7mm | 0.8mm | 1.25" | 0.03" | 0.267kg/m | 0.18lb/ft |
| H31.8x31.8x1.2 | 31.8mm | 1.2mm | 1.25" | 0.05" | 0.398kg/m | 0.27lb/ft |
| H31.8x31.8x3 | 31.8mm | 3mm | 1.25" | 0.12" | 0.934kg/m | 0.63lb/ft |
| H32x32x0.9 | 32mm | 0.9mm | 1.26" | 0.04" | 0.304kg/m | 0.2lb/ft |
| H32x32x1.1 | 32mm | 1.1mm | 1.26" | 0.04" | 0.369kg/m | 0.25lb/ft |
| H35x35x1.2 | 35mm | 1.2mm | 1.38" | 0.05" | 0.438kg/m | 0.29lb/ft |
| H38.1x38.1x1 | 38.1mm | 1mm | 1.5" | 0.04" | 0.401kg/m | 0.27lb/ft |
| H38.1x38.1x1.9 | 38.1mm | 1.9mm | 1.5" | 0.07" | 0.746kg/m | 0.5lb/ft |
| H38.1x38.1x1.91 | 38.1mm | 1.91mm | 1.5" | 0.08" | 0.7474kg/m | 0.5lb/ft |
| H38.1x38.1x2.03 | 38.1mm | 2.03mm | 1.5" | 0.08" | 0.794kg/m | 0.53lb/ft |
| H38.1x38.1x3 | 38.1mm | 3mm | 1.5" | 0.12" | 1.137kg/m | 0.76lb/ft |
| H38.1x38.1x3.05 | 38.1mm | 3.05mm | 1.5" | 0.12" | 1.159kg/m | 0.78lb/ft |
| H38.1x38.1x3.18 | 38.1mm | 3.18mm | 1.5" | 0.13" | 1.204kg/m | 0.81lb/ft |
| H38x38x1.6 | 38mm | 1.6mm | 1.5" | 0.06" | 0.631kg/m | 0.42lb/ft |
| H38x38x2 | 38mm | 2mm | 1.5" | 0.08" | 0.778kg/m | 0.52lb/ft |
| H38x38x3 | 38mm | 3mm | 1.5" | 0.12" | 1.138kg/m | 0.76lb/ft |
| H40x40x18.5 | 40 mm | 1.57" | 1.57" | 0.73" | 7.11 kg/m | 4.77 lb/ft |
| H40x40x1 | 40mm | 1mm | 1.57" | 0.04" | 0.423kg/m | 0.28lb/ft |
| H40x40x1.4 | 40mm | 1.4mm | 1.57" | 0.06" | 0.586kg/m | 0.39lb/ft |
| H40x40x1.8 | 40mm | 1.8mm | 1.57" | 0.07" | 0.745kg/m | 0.5lb/ft |
| H40x40x2 | 40mm | 2mm | 1.57" | 0.08" | 0.824kg/m | 0.55lb/ft |
| H40x40x3 | 40mm | 3mm | 1.57" | 0.12" | 1.203kg/m | 0.81lb/ft |
| H40x40x4 | 40mm | 4mm | 1.57" | 0.16" | 1.561kg/m | 1.05lb/ft |
| H45x45x20 | 45 mm | 1.77" | 1.77" | 0.79" | 8.80 kg/m | 5.91 lb/ft |
| H45x45x1.6 | 45mm | 1.6mm | 1.77" | 0.06" | 0.753kg/m | 0.51lb/ft |
| H45x45x2 | 45mm | 2mm | 1.77" | 0.08" | 0.932kg/m | 0.63lb/ft |
| H50x50x3 | 50 mm | 1.97" | 1.97" | 0.12" | 1.54 kg/m | 1.03 lb/ft |
| H50x50x1.2 | 50mm | 1.2mm | 1.97" | 0.05" | 0.632kg/m | 0.42lb/ft |
| H50x50x1.4 | 50mm | 1.4mm | 1.97" | 0.06" | 0.738kg/m | 0.5lb/ft |
| H50x50x1.5 | 50mm | 1.5mm | 1.97" | 0.06" | 0.789kg/m | 0.53lb/ft |
| H50x50x2 | 50mm | 2mm | 1.97" | 0.08" | 1.041kg/m | 0.7lb/ft |
| H50x50x2 | 50mm | 2mm | 1.97" | 0.08" | 1.04kg/m | 0.7lb/ft |
| H50x50x3 | 50mm | 3mm | 1.97" | 0.12" | 1.529kg/m | 1.03lb/ft |
| H50x50x4 | 50mm | 4mm | 1.97" | 0.16" | 1.995kg/m | 1.34lb/ft |
| H50.8x50.8x1.2 | 50.8mm | 1.2mm | 2" | 0.05" | 0.645kg/m | 0.43lb/ft |
| H50.8x50.8x1.8 | 50.8mm | 1.8mm | 2" | 0.07" | 0.905kg/m | 0.61lb/ft |
| H50.8x50.8x2.39 | 50.8mm | 2.39mm | 2" | 0.09" | 1.254kg/m | 0.84lb/ft |
| H50.8x50.8x2.4 | 50.8mm | 2.4mm | 2" | 0.09" | 1.255kg/m | 0.84lb/ft |
| H50.8x50.8x3 | 50.8mm | 3mm | 2" | 0.12" | 1.552kg/m | 1.04lb/ft |
| H50.8x50.8x3.18 | 50.8mm | 3.18mm | 2" | 0.13" | 1.641kg/m | 1.1lb/ft |
| H50.8x50.8x6.35 | 50.8mm | 6.35mm | 2" | 0.25" | 3.06kg/m | 2.06lb/ft |
| H50.8x50.8x23.9 | 50.8 mm | 2.00" | 2.00" | 0.94" | 10.20 kg/m | 6.85 lb/ft |
| H60x60x4 | 60 mm | 2.36" | 2.36" | 0.16" | 2.52 kg/m | 1.69 lb/ft |
| H60x60x1.2 | 60mm | 1.2mm | 2.36" | 0.05" | 0.765kg/m | 0.51lb/ft |
| H60x60x1.4 | 60mm | 1.4mm | 2.36" | 0.06" | 0.889kg/m | 0.6lb/ft |
| H60x60x2 | 60mm | 2mm | 2.36" | 0.08" | 1.256kg/m | 0.84lb/ft |
| H60x60x3 | 60mm | 3mm | 2.36" | 0.12" | 1.854kg/m | 1.25lb/ft |
| H60x60x4 | 60mm | 4mm | 2.36" | 0.16" | 2.429kg/m | 1.63lb/ft |
| H60x60x5 | 60mm | 5mm | 2.36" | 0.2" | 2.981kg/m | 2lb/ft |
| H63.5x63.5x3 | 63.5mm | 3mm | 2.5" | 0.12" | 1.96kg/m | 1.32lb/ft |
| H65x65x1 | 65mm | 1mm | 2.56" | 0.04" | 0.694kg/m | 0.47lb/ft |
| H70x70x1.5 | 70mm | 1.5mm | 2.76" | 0.06" | 1.114kg/m | 0.75lb/ft |
| H70x70x4 | 70mm | 4mm | 2.76" | 0.16" | 2.862kg/m | 1.92lb/ft |
| H72x72x1.8 | 72mm | 1.8mm | 2.83" | 0.07" | 1.37kg/m | 0.92lb/ft |
| H76x76x1.2 | 76mm | 1.2mm | 2.99" | 0.05" | 0.974kg/m | 0.65lb/ft |
| H76x76x1.4 | 76mm | 1.4mm | 2.99" | 0.06" | 1.132kg/m | 0.76lb/ft |
| H76x76x2 | 76mm | 2mm | 2.99" | 0.08" | 1.604kg/m | 1.08lb/ft |
| H76x76x2.5 | 76mm | 2.5mm | 2.99" | 0.1" | 1.985kg/m | 1.33lb/ft |
| H76x76x3 | 76mm | 3mm | 2.99" | 0.12" | 2.374kg/m | 1.6lb/ft |
| H76x76x3 | 76mm | 3mm | 2.99" | 0.12" | 2.375kg/m | 1.6lb/ft |
| H76.2x76.2x1.2 | 76.2mm | 1.2mm | 3" | 0.05" | 0.972kg/m | 0.65lb/ft |
| H76.2x76.2x3.18 | 76.2mm | 3.18mm | 3" | 0.13" | 2.517kg/m | 1.69lb/ft |
| H76.2x76.2x6.35 | 76.2mm | 6.35mm | 3" | 0.25" | 4.808kg/m | 3.23lb/ft |
| H80x80x1.2 | 80mm | 1.2mm | 3.15" | 0.05" | 1.025kg/m | 0.69lb/ft |
| H80x80x1.4 | 80mm | 1.4mm | 3.15" | 0.06" | 1.193kg/m | 0.8lb/ft |
| H80x80x2 | 80mm | 2mm | 3.15" | 0.08" | 1.685kg/m | 1.13lb/ft |
| H80x80x4 | 80mm | 4mm | 3.15" | 0.16" | 3.295kg/m | 2.21lb/ft |
| H85x85x1.5 | 85mm | 1.5mm | 3.35" | 0.06" | 1.358kg/m | 0.91lb/ft |
| H88x88x1.1 | 88mm | 1.1mm | 3.46" | 0.04" | 1.032kg/m | 0.69lb/ft |
| H95x95x2 | 95mm | 2mm | 3.74" | 0.08" | 2.016kg/m | 1.35lb/ft |
| H97.7x97.7x1.5 | 97.7mm | 1.5mm | 3.85" | 0.06" | 1.564kg/m | 1.05lb/ft |
| H100x100x1.2 | 100mm | 1.2mm | 3.94" | 0.05" | 1.28kg/m | 0.86lb/ft |
| H100x100x1.8 | 100mm | 1.8mm | 3.94" | 0.07" | 1.916kg/m | 1.29lb/ft |
| H100x100x3 | 100mm | 3mm | 3.94" | 0.12" | 3.154kg/m | 2.12lb/ft |
| H100x100x4 | 100mm | 4mm | 3.94" | 0.16" | 4.163kg/m | 2.8lb/ft |
| H100x100x6 | 100mm | 6mm | 3.94" | 0.24" | 6.114kg/m | 4.11lb/ft |
| H101x101x1.4 | 101mm | 1.4mm | 3.98" | 0.06" | 1.512kg/m | 1.02lb/ft |
| H101.6x101.6x3.18 | 101.6mm | 3.18mm | 4" | 0.13" | 3.393kg/m | 2.28lb/ft |
| H101.6x101.6x6.35 | 101.6mm | 6.35mm | 4" | 0.25" | 6.557kg/m | 4.41lb/ft |
| H110x110x2 | 110mm | 2mm | 4.33" | 0.08" | 2.351kg/m | 1.58lb/ft |
| H120x120x5 | 120mm | 5mm | 4.72" | 0.2" | 6.233kg/m | 4.19lb/ft |
| H150x150x2.5 | 150mm | 2.5mm | 5.91" | 0.1" | 3.997kg/m | 2.69lb/ft |
| H152.4x152.4x3.17 | 152.4mm | 3.17mm | 6" | 0.12" | 5.128kg/m | 3.45lb/ft |
| H152.4x152.4x4 | 152.4mm | 4mm | 6" | 0.16" | 6.435kg/m | 4.32lb/ft |
| H200x200x4 | 200mm | 4mm | 7.87" | 0.16" | 8.499kg/m | 5.71lb/ft |
Aluminum square tube mold (Round Corner)
Round-corner aluminum square tube molds produce profiles with smooth edges and a user-friendly touch, reducing stress concentration and enhancing corrosion resistance. They are commonly used in furniture profiles, decorative structures, and outdoor frames.
Contact us now
| Model NO. | A (mm) | A (inch) | T(mm) | T(inch) | R (mm) | R(inch) | Weight (kg/m) | Weight (lb/ft) |
| H11.9x11.9R1.5x0.9 | 11.9mm | 0.47" | 0.9mm | 0.04" | 1.5mm | 0.06" | 0.104 kg/m | 0.07 lb/ft |
| H20x20R0.5x0.9 | 20mm | 0.79" | 0.9mm | 0.04" | 0.5mm | 0.02" | 0.186 kg/m | 0.13 lb/ft |
| H20x20R1x1.6 | 20mm | 0.79" | 1.6mm | 0.06" | 1mm | 0.04" | 0.317 kg/m | 0.21 lb/ft |
| H22x22R1x2 | 22mm | 0.87" | 2mm | 0.08" | 1mm | 0.04" | 0.434 kg/m | 0.29 lb/ft |
| H25.4x25.4R6.35x3.18 | 25.4mm | 1" | 3.18mm | 0.13" | 6.35mm | 0.25" | 0.696 kg/m | 0.47 lb/ft |
| H35x35R2x2.5 | 35mm | 1.38" | 2.5mm | 0.1" | 2mm | 0.08" | 0.872 kg/m | 0.59 lb/ft |
| H38.1x38.1R7.92x3.05 | 38.1mm | 1.5" | 3.05mm | 0.12" | 7.92mm | 0.31" | 1.068 kg/m | 0.72 lb/ft |
| H40x40R3x2 | 40mm | 1.57" | 2mm | 0.08" | 3mm | 0.12" | 0.805 kg/m | 0.54 lb/ft |
| H50.8x50.8R9.53x3.05 | 50.8mm | 2" | 3.05mm | 0.12" | 9.53mm | 0.38" | 1.465 kg/m | 0.98 lb/ft |
| H50.8x50.8R9.52x3.18 | 50.8mm | 2" | 3.18mm | 0.13" | 9.52mm | 0.37" | 1.522 kg/m | 1.02 lb/ft |
| H50.8x50.8R10.16x4.78 | 50.8mm | 2" | 4.78mm | 0.19" | 10.16mm | 0.4" | 2.269 kg/m | 1.52 lb/ft |
| H50.8x50.8R26.35x6.35 | 50.8mm | 2" | 6.35mm | 0.25" | 26.35mm | 1.04" | 3.06 kg/m | 2.06 lb/ft |
| H60x60R2x2.5 | 60mm | 2.36" | 2.5mm | 0.1" | 2mm | 0.08" | 1.569 kg/m | 1.05 lb/ft |
| H60x60R6x2.5 | 60mm | 2.36" | 2.5mm | 0.1" | 6mm | 0.24" | 1.59 kg/m | 1.07 lb/ft |
| H60x60R5x4 | 60mm | 2.36" | 4mm | 0.16" | 5mm | 0.2" | 2.428 kg/m | 1.63 lb/ft |
| H76.2x76.2R9.53x6.35 | 76.2mm | 3" | 6.35mm | 0.25" | 9.53mm | 0.38" | 4.621 kg/m | 3.11 lb/ft |
| H80x80R5x3 | 80mm | 3.15" | 3mm | 0.12" | 5mm | 0.2" | 2.455 kg/m | 1.65 lb/ft |
| H80x80R5x4 | 80mm | 3.15" | 4mm | 0.16" | 5mm | 0.2" | 3.24 kg/m | 2.18 lb/ft |
| H90x90R12x7 | 90mm | 3.54" | 7mm | 0.28" | 12mm | 0.47" | 6.022 kg/m | 4.05 lb/ft |
| H100x100R4.5x2.5 | 100mm | 3.94" | 2.5mm | 0.1" | 4.5mm | 0.18" | 2.605 kg/m | 1.75 lb/ft |
| H101.6x101.6R4.78x4.78 | 101.6mm | 4" | 4.78mm | 0.19" | 4.78mm | 0.19" | 5.012 kg/m | 3.37 lb/ft |
| H101.6x101.6R6.35x6.35 | 101.6mm | 4" | 6.35mm | 0.25" | 6.35mm | 0.25" | 6.533 kg/m | 4.39 lb/ft |
If you do not find a suitable size in the above mold size table, please contact our engineering team. We can provide custom mold solutions and fast quotation services.
Tolerances for Aluminum Square Tubes
The dimensional tolerances of aluminum square tubes are closely related to the production process (extruded seamless / drawn seamless) and the measurement position (corner / non-corner).
Across flats (width/height)
- Extruded seamless: Tolerance range ±0.012″–±0.173″ (approx. ±0.30–4.40 mm), with stricter requirements at corners than non-corners.
- Drawn seamless: Tolerance range ±0.003″–±0.050″ (approx. ±0.08–1.27 mm), with significantly higher precision than extrusion.
Corner radius
- Sharp corners and small radius (<0.188″): Permissible deviation ±1/64″ (approx. ±0.40 mm).
- Large radius (≥0.188″): Permissible deviation ±10%.
Wall thickness
- Average wall thickness tolerance ±0.002″–±0.020″ (approx. ±0.05–0.51 mm).
- Maximum deviation at any point = fixed value or ±10% of average wall thickness, whichever is greater, and not less than ±0.003″ (0.076 mm).
Note:
Drawn square tubes offer the highest dimensional accuracy, making them suitable for applications with strict requirements on appearance and assembly. Extruded square tubes are more suitable for structural parts or general purposes. When selecting, customers should refer to specific tolerance values based on finished size range, process type, and whether the measurement is at the corner or non-corner position.
To view detailed dimensional tolerances for different processes and specifications, click to see the extruded seamless square tube tolerance table and the drawn seamless square tube tolerance table.
Aluminum square tube surface treatment and secondary processing
Common surface treatments
-
Anodizing forms a dense oxide layer, enhancing corrosion resistance and appearance. Common in curtain walls, decorative profiles, and transport interiors.
If you would like to learn more about process details and application cases, you can click to view our anodized aluminum tubes.
Powder coating
-
Powder coating forms a durable, eco-friendly layer with strong adhesion and color stability, ideal for long-term outdoor use.
Wood grain transfer
-
Wood grain transfer gives aluminum a realistic wood look, combining light weight, durability, and low maintenance for doors, windows
Fabrication Options
- CNC machining: Slotting, drilling, chamfering, and milling for complex structures, with precision up to ±0.1 mm.
- Bending & welding: Custom frames, brackets, or assemblies per drawings, supporting MIG/TIG welding for stable structures.
- Cut-to-size: Flexible lengths from 100 mm samples to 6 m bars, suitable for prototyping and mass production.
- Assembly pre-treatment: Connectors and tapped holes can be pre-installed for quick assembly upon delivery, reducing on-site work.
Chalco aluminum square tube production capacity and equipment advantages
Chalco has strong equipment and production capacity, covering the full process from aluminum ingot smelting to extrusion and precision machining, meeting customer requirements for size, accuracy, and delivery.
- 50,000-ton vertical extrusion press: Produces large-diameter seamless aluminum tubes up to 1,320 mm in diameter, 200 mm wall thickness, and 12 m length—among the largest of its kind worldwide.
- High-precision extrusion and machining: For precision tubes, OD tolerance can reach ±0.05 mm and wall thickness tolerance ±0.1 mm, suitable for highly demanding structural or engineering applications.
- Production advantages: Large-scale capacity and equipment layout enable Chalco to supply common existing mold extrusions and support custom mass production.
- Integrated process: Casting → extrusion → machining → surface treatment, ensuring accuracy, reducing lead time, and improving logistics coordination.
Aluminum square tube pricing and stock supply
Looking for a reliable aluminum square tube supplier?
We keep regular stock and specialize in producing a wide range of square tubes, available in both metric and imperial sizes to meet diverse project needs.
- Pricing advantage: Prices depend on alloy grade, temper, surface finish, and order volume, with bulk orders offering better cost efficiency.
- Flexible supply: From small trial orders to large industrial volumes, available in cut-to-size or standard lengths.
- Molds and stock resources: Comprehensive mold library with some common sizes in stock for fast delivery.
- Global service: Export packaging, EN 10204 3.1 material certificates, RoHS/REACH compliance reports, and worldwide shipping support.
Contact us now to get a fast quotation, or click to view the latest stock list.
Other aluminum tube products
Aluminum square tube FAQ
Can samples be provided?
Yes, we can provide short samples for testing and specification confirmation. Common alloys and sizes can be cut from stock, and special sizes can be machined as needed. Contact us to get free samples.
What is the minimum order quantity?
Common existing die sizes support small trial orders for prototyping or market testing. For custom dies or special alloys, the moq will be confirmed case by case.
How is the price calculated?
Price depends on alloy grade, temper (such as t5 or t6), size and wall thickness, surface finish, and order quantity. Larger orders are more cost-effective.
What is the typical lead time?
Existing die sizes can ship in as fast as 7–10 days. Custom dies typically require 3–5 weeks including die making, trial runs, and production.
What is the packaging method?
All aluminum square tubes use export-grade packaging that is scratch-resistant, moisture-proof, and impact-protected. Options include wooden crates, pallets, or banded bundles based on the shipping method. En 10204 3.1 material certificates and compliance documents are provided with the shipment.
Aluminum square tube tolerance table
Extruded seamless aluminum square tube tolerances
| Specified outside width range (inch) | Deviation at corners — 5083/5086/5454 | Deviation at corners — other alloys | Deviation not at corners — 5083/5086/5454 | Deviation not at corners — other alloys |
| 0.500–0.749 | ±0.018″ (±0.46 mm) | ±0.012″ (±0.30 mm) | ±0.030″ (±0.76 mm) | ±0.020″ (±0.51 mm) |
| 0.750–0.999 | ±0.021″ (±0.53 mm) | ±0.014″ (±0.36 mm) | ±0.030″ (±0.76 mm) | ±0.020″ (±0.51 mm) |
| 1.000–1.999 | ±0.027″ (±0.69 mm) | ±0.018″ (±0.46 mm) | ±0.038″ (±0.97 mm) | ±0.025″ (±0.64 mm) |
| 2.000–2.999 | ±0.038″ (±0.97 mm) | ±0.025″ (±0.64 mm) | ±0.053″ (±1.35 mm) | ±0.035″ (±0.89 mm) |
| 3.000–3.999 | ±0.053″ (±1.35 mm) | ±0.035″ (±0.89 mm) | ±0.068″ (±1.73 mm) | ±0.045″ (±1.14 mm) |
| 4.000–4.999 | ±0.065″ (±1.65 mm) | ±0.045″ (±1.14 mm) | ±0.083″ (±2.11 mm) | ±0.055″ (±1.40 mm) |
| 5.000–5.999 | ±0.083″ (±2.11 mm) | ±0.055″ (±1.40 mm) | ±0.098″ (±2.49 mm) | ±0.065″ (±1.65 mm) |
| 6.000–6.999 | ±0.098″ (±2.49 mm) | ±0.065″ (±1.65 mm) | ±0.108″ (±2.74 mm) | ±0.075″ (±1.91 mm) |
| 7.000–7.999 | ±0.113″ (±2.87 mm) | ±0.075″ (±1.91 mm) | ±0.123″ (±3.12 mm) | ±0.085″ (±2.16 mm) |
| 8.000–8.999 | ±0.128″ (±3.25 mm) | ±0.085″ (±2.16 mm) | ±0.143″ (±3.63 mm) | ±0.095″ (±2.41 mm) |
| 9.000–9.999 | ±0.143″ (±3.63 mm) | ±0.095″ (±2.41 mm) | ±0.158″ (±4.01 mm) | ±0.105″ (±2.67 mm) |
| 10.000–10.999 | ±0.158″ (±4.01 mm) | ±0.105″ (±2.67 mm) | ±0.173″ (±4.39 mm) | ±0.115″ (±2.92 mm) |
| 11.000–12.000 | ±0.158″ (±4.01 mm) | ±0.105″ (±2.67 mm) | ±0.173″ (±4.39 mm) | ±0.115″ (±2.92 mm) |
Notes:
- "At corner” = measured near the corner; "Non-corner” = measured at the mid-face.
- Non-corner tolerances do not apply in annealed temper (O temper) or when wall thickness is less than 2.5% of the overall dimension.
- Not applicable to special tempers such as T3510, T4510, or T6510.
Seamless drawn aluminum square tube tolerances
Width/height tolerances
| Specified outside width range (inch) | Deviation at corners (all alloys) | Deviation not at corners (all alloys) |
| <0.500 | ±0.003″ (±0.08 mm) | ±0.006″ (±0.15 mm) |
| 0.501–1.000 | ±0.004″ (±0.10 mm) | ±0.008″ (±0.20 mm) |
| 1.001–2.000 | ±0.005″ (±0.13 mm) | ±0.010″ (±0.25 mm) |
| 2.001–3.000 | ±0.006″ (±0.15 mm) | ±0.012″ (±0.31 mm) |
| 3.001–5.000 | ±0.008″ (±0.20 mm) | ±0.016″ (±0.41 mm) |
| 5.001–6.000 | ±0.010″ (±0.25 mm) | ±0.020″ (±0.51 mm) |
| 6.001–8.000 | ±0.015″ (±0.38 mm) | ±0.030″ (±0.76 mm) |
| 8.001–10.000 | ±0.020″ (±0.51 mm) | ±0.040″ (±1.02 mm) |
| 10.001–12.000 | ±0.025″ (±0.64 mm) | ±0.050″ (±1.27 mm) |
Corner radius tolerances
| Specified Radius | Tolerance |
| Sharp corners | ±1/64″ |
| Radius <0.188″ | ±1/64″ |
| Radius ≥0.188″ | ±10% |
Wall thickness tolerances (seamless drawn)
| Wall Thickness Range (inch) | Tolerance on Average Wall Thickness | Maximum Deviation at Any Point |
| 0.010–0.035 | ±0.002″ (±0.05 mm) | ±0.002″ or ±10% of average wall (whichever is greater) |
| 0.036–0.049 | ±0.003″ (±0.08 mm) | ±0.003″ or ±10% |
| 0.050–0.083 | ±0.004″ (±0.10 mm) | ±0.004″ or ±10% |
| 0.084–0.120 | ±0.005″ (±0.13 mm) | ±0.006″ or ±10% |
| 0.121–0.202 | ±0.008″ (±0.20 mm) | ±0.010″ or ±10% |
| 0.204–0.300 | ±0.010″ (±0.25 mm) | ±0.012″ or ±10% |
| 0.301–0.375 | ±0.015″ (±0.38 mm) | ±0.020″ or ±10% |
| 0.376–0.500 | ±0.020″ (±0.51 mm) | ±0.030″ or ±10% |
Notes:
In addition to the specified values, the deviation at any point must be ≤ ±10% of the average wall thickness, and not less than ±0.003″.
Hot-selling aluminum square tube stock list
Imperial sizes
| Hot-selling aluminum square tube sizes (imperial) | ||
| 1/2 inch aluminum square tubing | 3/4 inch aluminum square tubing | 7/8 inch aluminum square tubing |
| 1 inch aluminum square tubing | 1-1/8 inch aluminum square tubing | 1-1/4 inch aluminum square tubing |
| 1-1/2 inch aluminum square tubing | 1-3/4 inch aluminum square tubing | 2 inch aluminum square tubing |
| 2-1/4 inch aluminum square tubing | 2-1/2 inch aluminum square tubing | 2-3/4 inch aluminum square tubing |
| 3 inch aluminum square tubing | 3-1/2 inch aluminum square tubing | 4 inch aluminum square tubing |
| 5 inch aluminum square tubing | 6 inch aluminum square tubing | 7 inch aluminum square tubing |
| 8 inch aluminum square tubing | 10 inch aluminum square tubing | 6x6 aluminum square tube |
Metric sizes
| Hot-selling aluminum square tube sizes (metric) | ||
| 15mm aluminium square tube | 19mm aluminium square tube | 20mm aluminium square tube |
| 25mm aluminium square tube | 30mm aluminium square tube | 35mm aluminium square tube |
| 40mm aluminium square tube | 50mm aluminium square tube | 60mm aluminium square tube |
| 70mm aluminium square tube | 80mm aluminium square tube | 100mm aluminium square tube |
| 142mm aluminium square tube | 150mm aluminium square tube | 200mm aluminium square tube |

